The main specifications and parameter
1. The specification of the rolling production (mm):2.0-3.0mm galvanized steel
2. The speed of the roll-in: 10-12M/min
3. The number of the roller: about 18 stations
4. The material of the roller: use the excellent hammered steel GCr15 to be quenched as a whole, then to process by numerical control.
5. The material of the principal axis: use the excellent steel No.45 to process.
6. The power of the principal electric motor:15KW
7. Hydrodynamic station cut: 5.5kW
8. Drive-by-wire system: The whole machine uses the PLC industrial computer to control by frequency conversion.
9. The size of the shape equipment: 9.5×0.8×1.0 meterS
10. The gross weight of the equipment: About 8 T
The Working Flow:
Uncoiling—Feeding&Leveling—Rollforming—Cutting—Products collecting

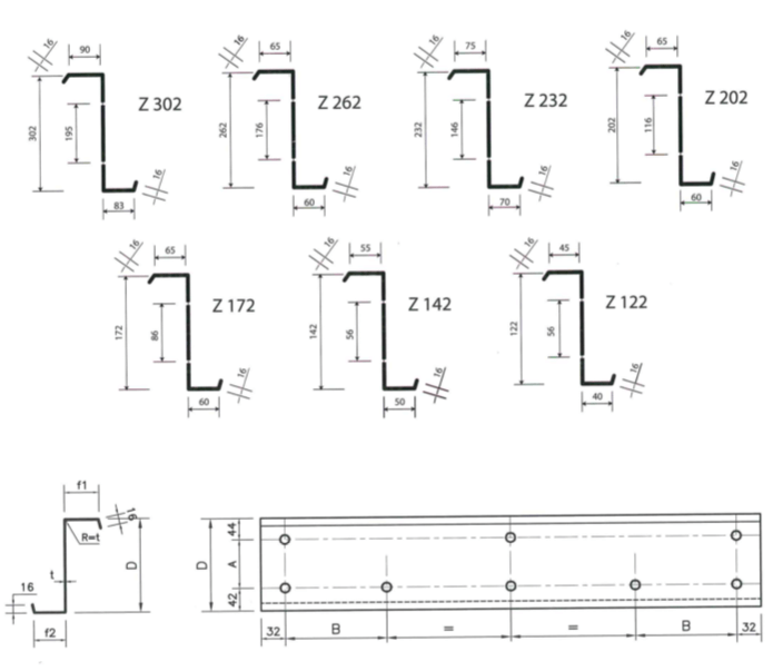
Profile Drawing(OEM):

The Machine List:
|
No |
Name |
Quantity |
|
1 |
3 ton Passive de-coiler |
1 set |
|
2 |
Main roll forming machine |
1 set |
|
3 |
Hydraulic punching and cutting device |
1 set |
|
4 |
Control box |
1 unit |
|
5 |
Hydraulic station |
1 unit |
|
6 |
Out tables |
2 units |




























What's Sussman's machine different from other suppliers?
The price of Sussman's roll forming machines is a little higher than other suppliers'. Let me explain about our machines difference:
Our display screen is touch screen, not text touch screen.












Sussman roll forming system: We will make the hand wheels at the feeding device to adjust feeding width, and we also make the wheels with the numbers then you know how to adjust right and left sides, also we made the rulers on the bedding, you can adjust the profile height and width according to the rulers.
Screw with numbers is to adjust material thickness easily, also with protecting cap also add laminating film device and felt to make the board flatter and smoother without scratches.
The machine is equipped with a detection switch device, in case of emergency, emergency alarm, stop operation.













