17 Aug
Quotation & Technical Specification VIGACERO machine
Tel: +86-510-88276675 Fax: +86-510-88276675 Attn: Spring Wu Website: www.suhangmachine.com Email: spring@suhangmachine.com
|
1. The delivery term for the above equipment is FOB SHANGHAI
2. The whole producing plant has the CE certificate approved (Photocopy of it will be available if needed).
3. We offer a warranty period of 1 year for all of our machines.
4. Our after-sales services will include factory process designing, equipment Installation coaching, test running the machines, and training of your operation personnels. For more detail on this please refer to our
“Our After-Sales Service Policy”
5. We provide a complete set of the Operational Manual(Chinese and English versions are available)
6. Our price quotation is non-binding, and valid for One Month starting from the date of issue or offer was made
VIGACERO Roll Forming Machine
Machine name |
Unit price |
Quantity |
Price |
Easy deck floor Machine |
RMB280,000 |
1 set |
RMB280,000 |
Subtotal EXW WUXI( without the Vat) |
RMB280,000 |
Profile
Price(FOB Shanghai) |
3 ton passive de-coiler |
1 set |
Main roll forming machine |
1 set |
|
PLC Control box |
1 unit |
|
Hydraulic station |
1 unit |
|
Hydraulic cutting device |
1 unit |
|
Out table |
1 unit |
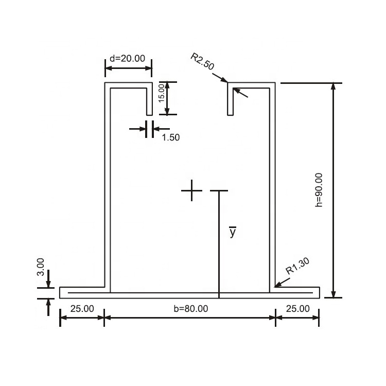
Technical data
Technological process
Uncoiling—feedingwithguide—Rollforming——Cutting—Products collecting
The external of machine
|
Items |
Specifications |
Remarks |
Material of coil |
Material Thickness |
1.5mm galvanized |
|
Un Coiler |
3 tons manual |
|
|
Forming system |
Rolling Speed |
10 m/min |
|
Roller Stations |
About 24 stations |
|
|
Roller Material |
45# Steel with quenching 60mm shaft |
|
|
Maim Motor Power |
7.5 kw |
|
|
Hydraulic cutting Power |
4 kw |
|
|
Cutting |
Material Of Cutting |
CR12 with quench treatment |
|
Hardness |
HRC58-62 |
|
|
Tolerance |
+-1.5mm |
|
|
Electrical control system |
Electric Source |
220V, 60HZ,3 phase |
|
Control System |
PLC (Panasonic) as list in the note |
|
|
|
Weight |
About 5.5 tons |
|
|
Way Of Drive |
1 inch single chain |
|
|
Size of machine |
Length 9000mm* Width 600mm* Height 1000mm |
|
Details of each composition
3 ton passive de-coiler
Cutting way
(1) Cutting motion: The main machine stops and then cut automatically. After cutting, the main machine re-starts automatically.
(2) Material of blade: CR12 with heat treatment
(3) Length measuring: Automatically
(4) Tolerance of length: + 1.5mm
(5) In order to get the perfect profiles, we recommend the post hydraulic cutting by changing the cutting moulds. It is easy to operate.
Ÿ Out Table:
Ÿ Length : 2m
Ÿ Quantity: 2 units
Ÿ Control Box: Delta Brand
(1) Power supplier: 220V, 60 Hz, 3Phase (adjusted with the request )
(2) Length & quantity measurement automatically;
(3) Length & quantity controlled by PLC,
(4) Length inaccuracy can be amended easily.
(5). Control panel: Button-type switch and touch screen
(6) The language in the touch screen: English and Chinese
(7) Unit of length: millimeter (switched on the control panel)
Loading picture
1. Payment terms:
40% deposit, 60% Balance, inspection of the equipments by the Buyer or the Buyer’s representative at the Seller’s factory, but before shipment;
1. Delivery time:
90 days after received the payment
2. Warranty Period:
12 months warranty period, starting from the date of the successful installation and commissioning of the equipments at the Buyer’s Installation site.
Spring Wu (spring@suhangmachine.com)
Mob:+86-13606193016
October 26, 2016
The Most Successful Engineering Contractor27 Aug
Fly Cut Roof Panel Machine19 Aug
Ladder Cable Tray Machine19 Aug
Boltless Roof Panel Machine18 Aug
Upright Racking Machine18 Aug
Shutter Guide Rail Machine